Retkinia - magazyn od 500 do 1000 m2

Magazyn na wynajem
11 750,00 PLN , Pow. 500 m2
Drukuj ofertę
Drukuj ofertę
Typ nieruchomości:
Komercyjny
Powierzchnia:
500 m2
Typ transakcji:
wynajem
Liczba pokoi:
1
Lokalizacja:
Łódź Polesie
Numer oferty:
DSI-801039
Powierzchnia działki:
18 000 m2
Cena za m2:
23,50 PLN
RETKINIA - MAGAZYN DO NAJMU
od 500 m2 do 1000 m2
CENA 23,50 zł/m2 + VAT + MEDIA

Oferujemy do wynajmu nowoczesne hale magazynowe w doskonałej lokalizacji w Łodzi - w sąsiedztwie zjazdu z autostrady i w sąsiedztwie strefy ekonomicznej.

Szczegóły oferty


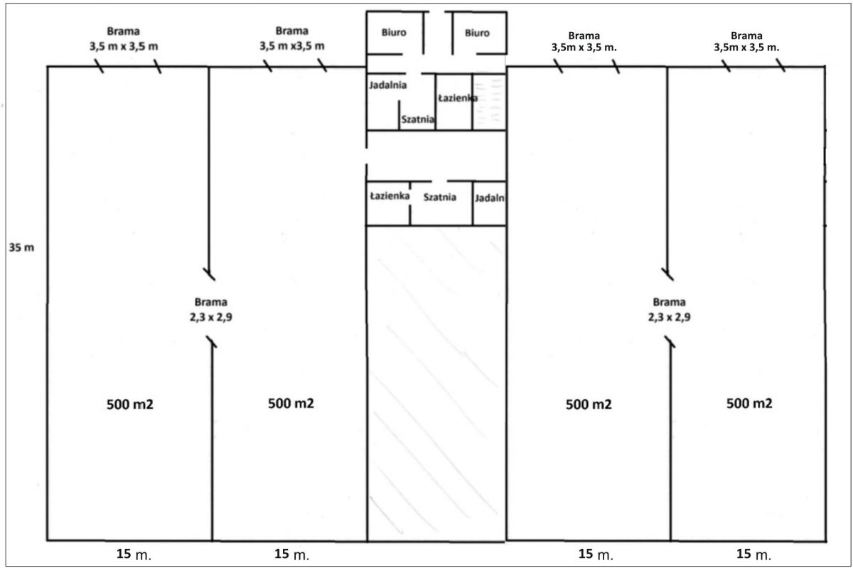
  • Powierzchnia: Dwie hale po 500 m² każda, połączone wewnętrzną bramą dla optymalnego wykorzystania przestrzeni.

  • Ceny: Hale - 23,50 zł/m² netto; biura i pomieszczenia socjalne - 30 zł/m² netto.

  • Dostępność: od 1.06.2026, elastyczne warunki najmu.


Techniczne parametry hal:


  • Bramy wjazdowe o szerokości i wysokości 3,5 m z poziomu "0" - łatwy wjazd tira.

  • Wymiary hali: 35 m x 15 m

  • Otwarta przestrzeń wewnętrzna z posadzką betonową.

  • Wysokość składowania: 4-6 m.

  • Świetliki w dachu - dobre doświetlenie wnętrza

  • Możliwość instalacji nagrzewnic gazowych do ogrzewania.

  • Duża moc prądowa: do 250 kW.


Infrastruktura:


  • Teren ogrodzony, utwardzony kostką brukową, całodobowy monitoring.

  • Dodatkowe powierzchnie biurowe i socjalne w cenie 30 zł/m² netto.



Dlaczego warto?
Ta lokalizacja to oszczędność czasu i kosztów transportu, a obiekt łączy funkcjonalność z bezpieczeństwem. Idealny dla firm rozwijających się w regionie łódzkim!
Nieprawidłowy adres E-mail